Наружный блок Mitsubishi Electric MXZ-6C122 VA
Подробное описание
- Технические характеристики
- описание
- отзывы (0)
| Инвертор | Да |
| Производ-сть по холоду, кВт | 13.5 |
| Кол-во внутренних блоков - | 6 |
| Производ-сть по теплу, кВт | 16.5 |
| Обслуживаемая площадь, м2 | 121 |
| Напряжение, В/Гц/Ф | 220/50/1 |
| Уровень шума, дБ(А) | 55 |
| Тип хладагента | R410А |
| Размеры блока, мм | 900х320(+21)х1070 |
| Вес (кг) | 88 |
Назначение наружного блока для мульти-сплит системы Mitsubishi Electric MXZ-6C122VA
Наружный блок мульти сплит-системы Mitsubishi Electric MXZ-6C122VA предназначен для подключения двух внутренних блоков с суммарной производительностью не более 13,5 кВт в режиме охлаждения. Мульти сплит-система идеально подходит в тех случаях, когда необходимо охладить несколько помещений, используя при этом всего один наружный блок. Использование наружного блока от мульти сплит-системы позволяет сэкономить место в ограниченном пространстве и не портить фасад здания. Применение блока MXZ-6C122VA позволит охладить два помещения с суммарной площадью не более 135-140 м2.
Возможные комплектации внутренних блоков к наружному MXZ:
- Настенные – MSZ-FH25VE, MSZ-EF22VE, MSZ-EF25VE, MSZ-SF25VE, MSZ-SF15VE, MSZ-SF20VE
- Напольные – MFZ-KJ25VE, MFZ-KJ32VE, MFZ-KJ50VE
- Однопоточные кассеты – MLZ-KA25VA, MLZ-KA35VA, MLZ-KA50VA
- 4-х поточные кассеты – SLZ-KF25VA, SLZ-KF35VA, SLZ-KF50VA, SLZ-KF60VA
- Канальные – SEZ-KD25VAQ, SEZ-KD35VAQ, SEZ-KD50VAQ, SEZ-KD60VAQ
Пример возможной комплектации такой мульти сплит-системы:
- MSZ-LN25VG – 2 комплекта
- MSZ-FH25VE+MSZ-LN25VG
- MSZ-FH25VE+MFZ-KJ25VE
- SLZ-KF25VA+SEZ-KD25VAQ
- MSZ-SF15VE+SEZ-KD25VAQ
Допускается применение комбинации из внутренних блоков с суммой мощности больше мощности наружного блока, т.к. эксплуатация внутренних блоков чаще осуществляется в при частичной загрузке.
Подключаемые внутренние блоки к мульти сплит-системе Mitsubsh Electric MXZ
Функциональные возможности внешнего блока
Наружный блок Mitsubishi Electric MXZ-6C122VA способен работать в режиме охлаждения, при температуре воздуха на улице от -10 до +46оС, и на обогрев при температуре от -15 до +24оС. Применение инверторной технологии позволило снизить уровень шума до 55 дБ и вибрации.
В наружном блоке, на плате управления, предусмотрены DIP-переключатели, фиксирующие запрет работы блока зимой на охлаждение, а летом на обогрев.
Монтаж
При выборе места установки наружного блока мульти сплит-системы, необходимо учитывать технологические зазоры до препятствий, для эффективной циркуляции воздушных масс проходящих через конденсатор-испаритель и доступа для сервисного обслуживания.
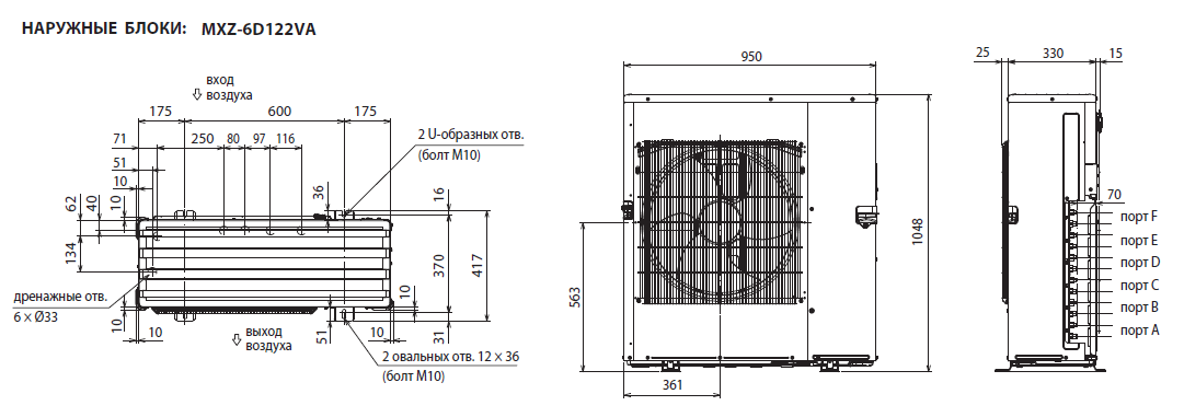
Габариты наружного блока мульти сплит-системы Mitsubish Electric MXZ-6C122VA
Внешний блок MXZ-6C122VA не требует дополнительной дозаправки фреоном, если протяженность коммуникаций не превышает 80 метров.
Расчет дозаправки фреоном для мульти сплит-системы Mitsubishi Electric MXZ
Благодаря применению инверторных технологий, наружный блок подключается к нагрузке с помощью кабеля 3-х жильного кабеля с сечением 4,0 мм2.
Схема электрических соединений внутренних с наружным блоком мульти сплит-системы Mitsubishi Electric MXZ
При эксплуатации мульти сплит-системы на обогрев, в поддоне наружного блока MXZ-6C122VA предусмотрена возможность подключения дренажного шланга d33 мм.
Как купить?
Хотите купить мульти сплит-систему Mitsubishi Electric MXZ-6C122VA?
Воспользуйтесь удобным фильтром подбора оборудования в левой части страницы. Сомневаетесь в выборе?
Звоните – 8(499)900-50-92. Оставляйте заявки на почту – sale@ruclimat.ru
Мы вас проконсультируем и подберем необходимую модель.
































